BORDEAUX - Situé au cœur du quartier prisé de Bordeaux Euratlantique, ce superbe T5 en étage élevé offre un cadre de vie exceptionnel au sein d’une résidence de prestige à taille humaine.
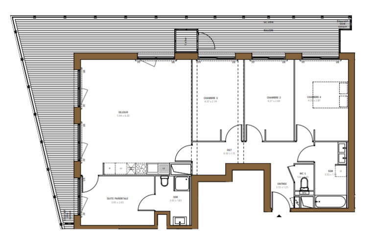
Il est agencé comme suit: un espace de vie lumineux avec séjour et cuisine ouverte donnant sur la terrasse, une suite parentale avec sa salle d’eau privative, un coin nuit desservant 3 chambres supplémentaires donnant toutes accès à la terrasse, une salle de bain et un WC séparé. Enfin, un cellier est également disponible pour plus de praticité.
Une superbe terrasse de près de 45 m², exposée idéalement, vous permettra de profiter pleinement de la vue sur la Garonne.
Les atouts de la résidence :
- Emplacement privilégié en bord de Garonne
- À proximité des transports et commodités du quartier Euratlantique
- Prestations haut de gamme
Prix direct promoteur – Pas de frais d’agence. Vous souhaitez organiser une visite ? Contactez votre agence Fanny Dupain Immobilier au 06 87 42 68 97.
