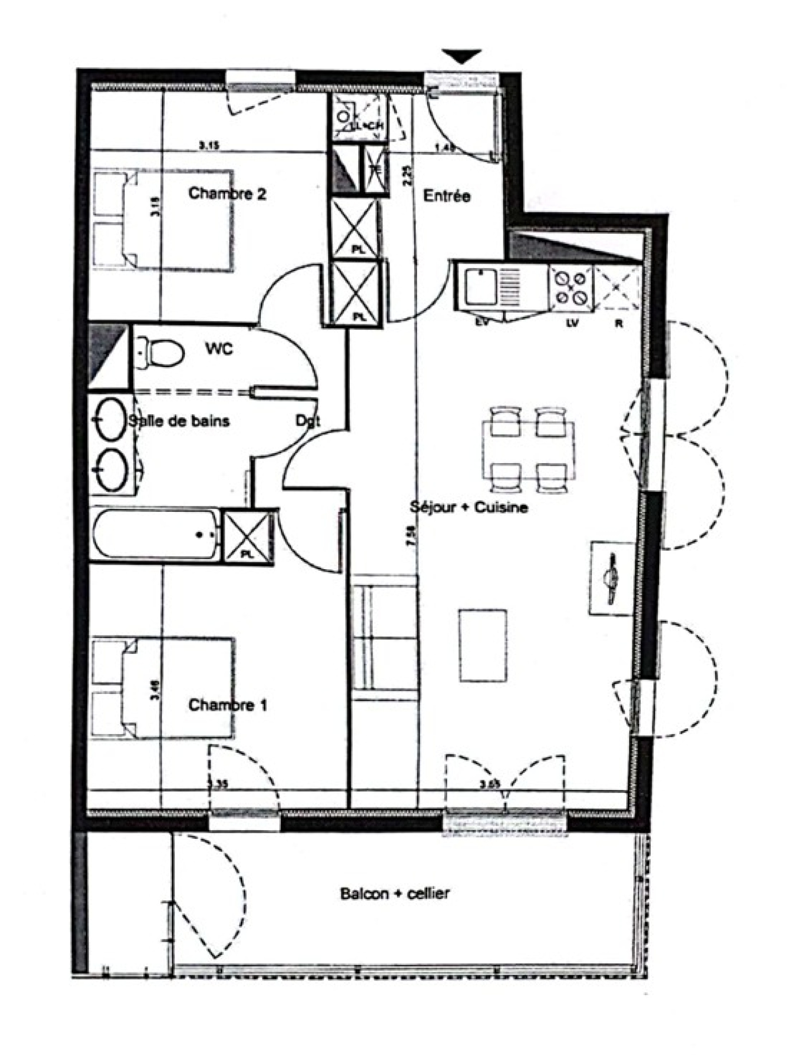
Floirac centre - T3 lumineux 65 m² avec terrasse et parking
Venez découvrir ce charmant appartement T3 de 65 m², idéalement situé, offrant une agréable terrasse et un cadre de vie pratique au quotidien.
Dès l’entrée, un dégagement vous mène vers un lumineux séjour de 28 m², ouvert sur la cuisine, créant un espace de vie convivial et chaleureux. Cette pièce s’ouvre directement sur une belle terrasse de 14 m², parfaite pour profiter des beaux jours, recevoir vos proches ou simplement vous détendre.
L’espace nuit se compose de deux chambres confortables ainsi que d’une salle de bains fonctionnelle, offrant un agencement idéal pour un couple, une petite famille ou un investissement.
Pour votre confort, une place de parking en sous-sol complète ce bien.
Vous apprécierez particulièrement la proximité immédiate du centre-ville, des transports, des commerces et de toutes les commodités, garantissant un cadre de vie pratique et agréable au quotidien.
Pour tous renseignements veuillez contacter Linda BRIGE au 06 31 55 72 62 agent commercial de la SAS Fanny Dupain Immobilier immatriculée au RSAC de Bordeaux sous le numéro 901363846.
