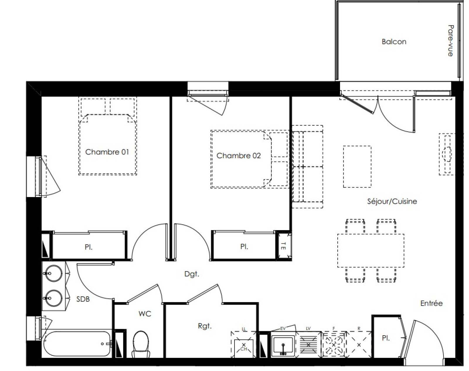
À découvrir en lisière de forêt, dans un environnement calme et privilégié, ce bel appartement lumineux de 61 m² avec terrasse, situé au 1er étage et dernier etage d’une petite résidence intimiste.
Dès l’entrée, vous profitez d’un placard intégré et d’un bel espace de vie de 25 m² avec séjour et cuisine ouverte, prolongé par une terrasse exposée plein sud, idéale pour profiter des beaux jours.
Côté nuit, l’appartement offre deux chambres avec placard et une salle de bain.
Le centre de Gujan se trouve à seulement 2 km, alliant tranquillité et proximité des commodités.
Place de parking disponible en option.
Frais de notaire offerts !
Pour tous renseignements veuillez contacter Linda BRIGE au 06 31 55 72 62 agent commercial de la SAS Fanny Dupain Immobilier immatriculée au RSAC de Bordeaux sous le numéro 901363846.
