FLOIRAC CENTRE - Rare sur le secteur !
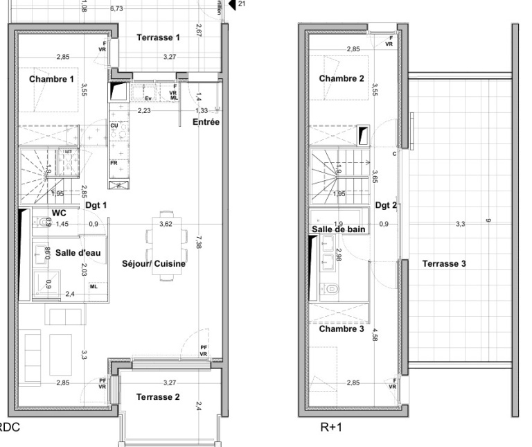
Dans une résidence fraîchement livrée et entourée de verdure, découvrez ce T4 duplex de 88 m² moderne et fonctionnel. Le rez-de-chaussée vous offre une belle pièce de vie lumineuse avec cuisine ouverte avec accès direct à une terrasse de 13 m², une chambre avec salle d'eau et un WC indépendant. L'étage dessert 2 grandes chambres avec rangements, une salle de bain et une seconde terrasse de 29m².
- Résidence arborée et conviviale
- Éligible TVA réduite 5,5 % (nous contacter pour vérifier votre éligibilité)
- Frais de notaire réduits
Une belle opportunité à saisir en contactant votre agence indépendante Fanny Dupain Immobilier au 06.31.55.72.62
