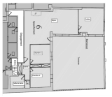
Dans le centre de Floirac, venez découvrir ce vaste appartement T3 de 111 m², situé dans une petite copropriété au calme. Ce bien rare sur le secteur dispose d’un atout exceptionnel : une terrasse de 87 m² offrant un bel espace extérieur, idéal pour recevoir ou profiter des beaux jours.
L’appartement se compose actuellement d’un grand séjour de 59 m² , d’une cuisine indépendante, de deux chambres, d’une salle de bain et de WC séparés. Sa configuration et ses volumes généreux permettent d’imaginer de nombreuses possibilités d’aménagement.
Entièrement à rénover, il représente une véritable opportunité pour les amateurs de beaux projets ou pour un investissement à fort potentiel.
Pour tous renseignements veuillez contacter Linda BRIGE au 06 31 55 72 62 agent commercial de la SAS Fanny Dupain Immobilier immatriculée au RSAC de Bordeaux sous le numéro 901363846.
